Architecture's Role in Fostering Community
From a pop-up pavilion that redefines public space, a library that serves as a cultural hub, and a thoughtfully designed double house, each project considers how design can enhance everyday interactions.
Through research, prototyping, and user-driven solutions, these works examine how architecture can be both functional and meaningful.
Rethinking the Pavilion: A Pop-Up Library
This project explores the role of a pavilion as a flexible, community-driven space.
Designed for Chin Park in Boston’s Chinatown, the pavilion serves as a seasonal pop-up library, offering shelter, seating, and storage for books and media. Through iterative study models and user research, the design evolved to accommodate both active and quiet interactions—providing a shaded retreat, a gathering space, and even a climbable structure.
Its lightweight, modular construction allows for adaptability, making it a dynamic addition to the park that responds to the needs of its visitors.
A Library for Everyone: Community, Culture, and Connection
This Chinatown library reimagines what it means for a public space to be truly “free to all.”
Designed to serve as both a cultural and educational hub, the building integrates key community needs—a ground-floor café supporting local businesses, an open community space at its core, and an auditorium for public events. The design promotes accessibility and inclusivity, with activity levels gradually transitioning from vibrant social spaces to quiet study areas across its five floors.
A defining feature is the large-scale projection wall, transforming the library into a dynamic landmark that celebrates Chinatown’s festivals, events, and shared experiences.





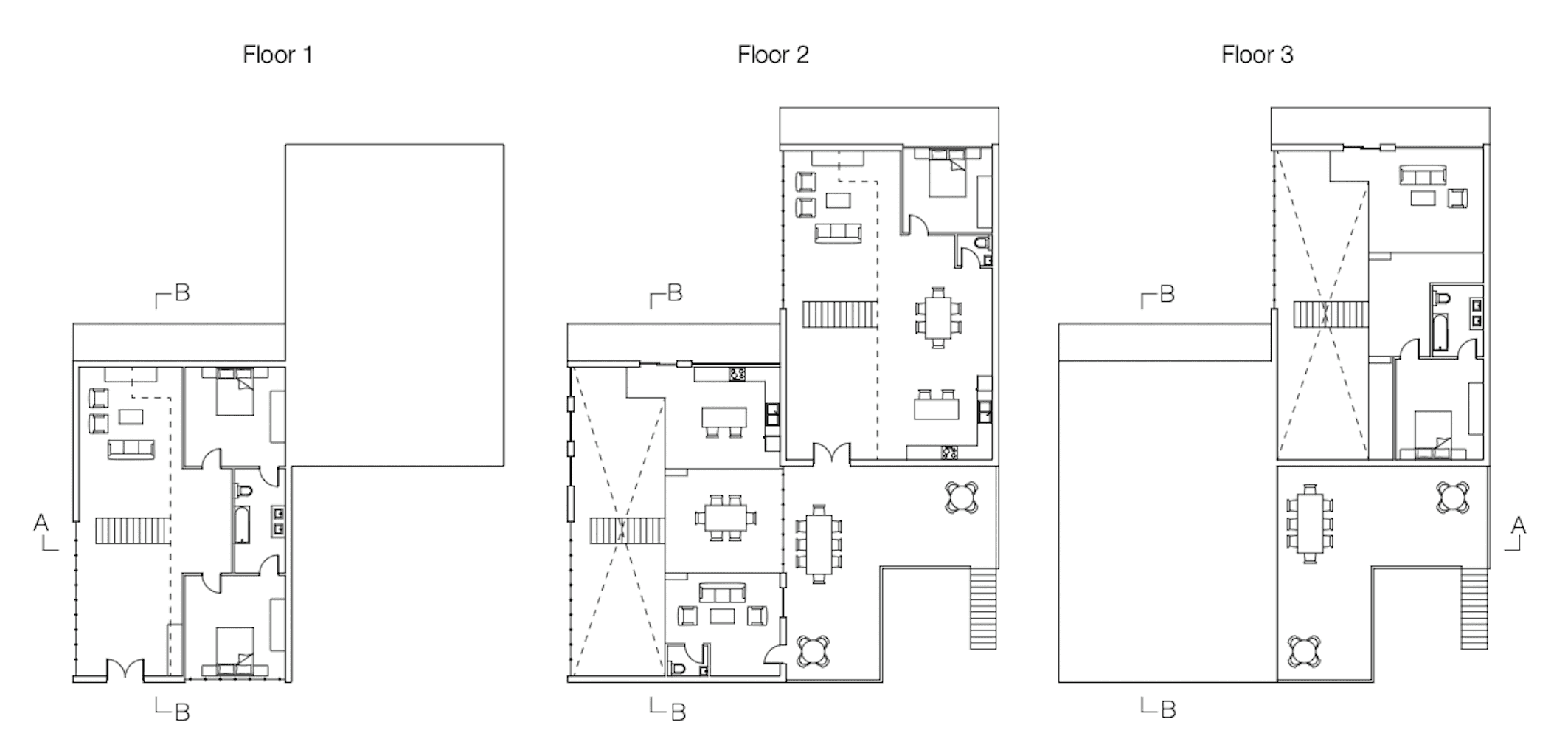
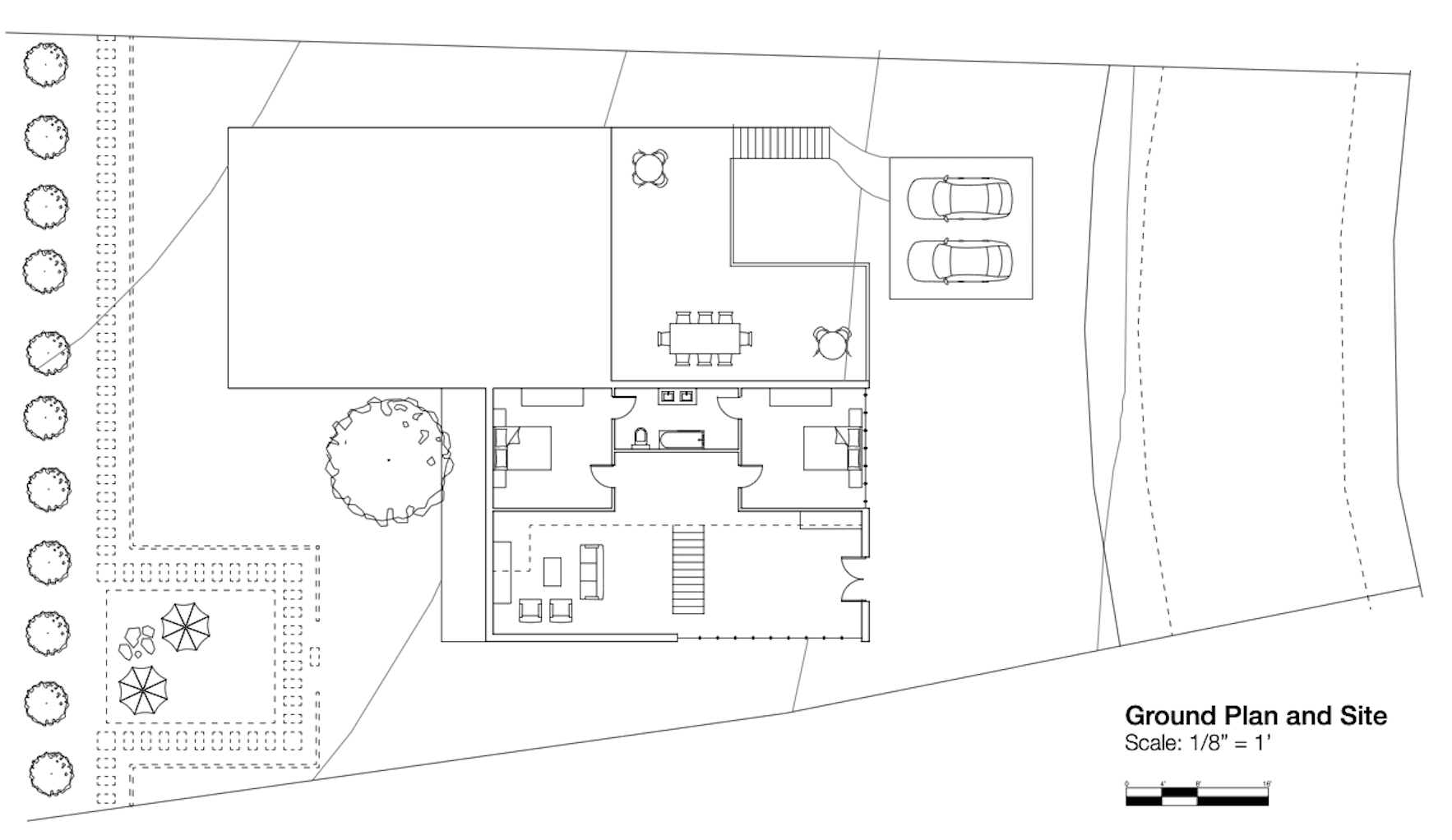
The Double House: A Home in Harmony with Its Surroundings
This project explores the relationship between architecture and environment, designing a two-family home that balances privacy and shared spaces.
Situated on a hillside, the structure responds to sunlight, elevation, and access points while maximizing functionality within a compact footprint. The mirrored layouts create a dynamic spatial relationship—one home places bedrooms below, the other above, allowing both to share a common living space on the shared floor.
Through models, plans, and section studies, this project examines how thoughtful design can integrate with the landscape while fostering connection and individuality.



